Fasteignaleitin
Skráð 25. sept. 2025

Tónahvarf 3 Skt. Leiga

Atvinnuhúsn.Höfuðborgarsvæðið/Kópavogur-203
392 m2
Verð
990.000 kr.
Mynd af Halldór Már Sverrisson
Halldór Már Sverrisson
Fasteignanúmer
2361511_87
Landnúmer
0
Húsgerð
Atvinnuhúsn.
Númer hæðar
0
Lóðarréttindi
Leigulóð
Atvinnueign kynnir til leigu: 392 fm iðnaðar- og skrifstofuhúsnæði við Tónahvarf 3.

Skammtímaleiga.

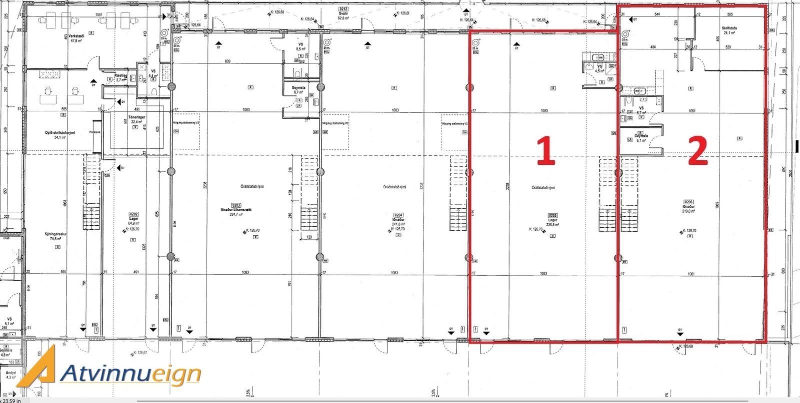
Húsnæðið er iðnaðarhúsnæði sem búið er að aðlaga sem skrifstofu- og lagerhúsnæði. Rýmið er að mestu opið rými en búið að stúka af með glerveggjum skrifstofu/fundarherbergi á grunnhæð sem og tvær skrifstofur / fundarherbergi á millilofti.

Kaffikrókur / eldhúsaðstaða á milliloft og og tvö salerni. Rými merkt nr. 2 á teikningu. Góð lofthæð.

Hægt er að fá leigt til viðbótar bil við hliðina.

Laust eftir samkomulagi.

Virðisaukaskattur bætist við leigu.
 
Allar nánari upplýsingar opnunartíma veitir:
Davíð Jens Guðlaugsson, löggiltur leigumiðlari í síma 846-7495 eða david@atvinnueign.is

Á vefsíðu okkar getur þú fundið fleiri eignir sem og kynnt þér þjónustu Atvinnueignar ehf.www.atvinnueign.is

                - Atvinnueignir eru okkar fag -
Engin gögn fundust fyrir þessa eign

Myndir (10)

Sambærilegar eignir

Skoða eignina Grandagarður 7
tilleigu.png
Skoða eignina Grandagarður 7
Grandagarður 7
101 Reykjavík
240 m2
Atvinnuhúsn.
Fasteignamat 68.850.000 kr.
Tilboð
Skoða eignina Fossháls 27
Til leigu
Skoða eignina Fossháls 27
Fossháls 27
110 Reykjavík
347.1 m2
Atvinnuhúsn.
15
Fasteignamat 75.600.000 kr.
Tilboð
Skoða eignina Fossháls 27
Til leigu
Skoða eignina Fossháls 27
Fossháls 27
110 Reykjavík
230.5 m2
Atvinnuhúsn.
1
Fasteignamat 72.050.000 kr.
Tilboð
Skoða eignina Fossháls 27
Til leigu
Skoða eignina Fossháls 27
Fossháls 27
110 Reykjavík
1,076.3 m2
Atvinnuhúsn.
3
Fasteignamat 313.200.000 kr.
Tilboð
Fasteignaleitin
Öflugur fasteignaleitarvefur með einföldu og notendavænu viðmóti sem býður upp á ítarlegar upplýsingar um fasteignir, þróun verðlags og fróðleik um fasteignamarkaðinn.
Hafðu samband
© Copyright 2026 - Fasteignaleitin