Opið hús:25. jan. kl 13:00-13:30
Skráð 24. jan. 2026

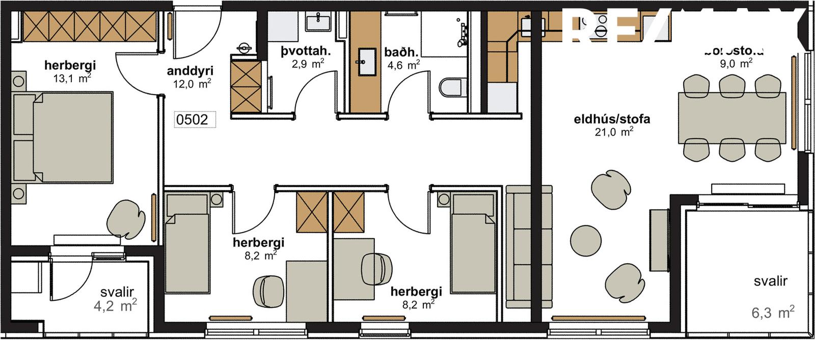
Hringhamar 15,íb. 502

FjölbýlishúsHöfuðborgarsvæðið/Hafnarfjörður-221
97.5 m2
4 Herb.
3 Svefnh.
1 Baðherb.
Verð
79.900.000 kr.
Fermetraverð
819.487 kr./m2
Fasteignamat
76.450.000 kr.
Brunabótamat
66.960.000 kr.
Mynd af Guðmundur Þór Júlíusson
Guðmundur Þór Júlíusson
Löggiltur fasteignasali
Byggt 2023
Þvottahús
Lyfta
Garður
Bílastæði
Sameig. Inng.
Fasteignanúmer
2529215
Húsgerð
Fjölbýlishús
Byggingarefni
Steypt
Númer hæðar
5
Númer íbúðar
2
Vatnslagnir
Nýbygging.
Raflagnir
Nýbygging.
Frárennslislagnir
Nýbygging.
Gluggar / Gler
Nýbygging.
Þak
Nýbygging.
Lóðarréttindi
Leigulóð
Svalir
Út frá stofu.
Upphitun
Hitaveita.
Inngangur
Sameiginlegur
Matsstig
7 - Fullgerð bygging
Guðrún Þórhalla og Guðmundur Þór Júlíusson löggiltir fasteignasalar hjá RE/MAX fasteignasölu kynna:

Hringhamar 13-15 í Hamranesinu, Hafnarfirði. Glæsilegar nýjar íbúðir í fallegu og sérlega vönduðu fjölbýlishúsi sem byggt er af traustum verkataka Mótx.


Íbúðirnar afhendast fullbúnar án gólfefna. Allar íbúðir eru útbúnar með sérstöku loftræstiskerfi. Kerfið hefur loftskipti í íbúðinni með því að taka loft að utan og dæla því inn í vistarverurnar, herbergi og stofu, og soga lofti út úr baði, þvottahúsi og eldhúsi.

Hringhamar.is - Heimasíða verkefnisins.

Íbúð 502: 97,5 fm 4ja herbergja íbúð á 5.hæð með stæði í bílageymslu. Íbúðin er 92,7 fm ásamt 4,8 fm geymslu og sér þvottahús innan íbúðar.

Bókið skoðun hjá Guðrúnu í síma 820-0490 eða með tölvupósti á netfangið gudrun@remax.is eða á Gumma Júl í síma 858-7410 eða með tölvupósti á netfangið gj@remax.is 

Frekari upplýsingar um eignirnar:
Gólf íbúða eru fleytt og tilbúin fyrir endanlegt gólfefni, nema í baðherbergi og í þvottahúsi en þar eru flísar á gólfum. Einnig eru flísar á veggjum baðherbergja, flísar eru frá Parka. Fataskápar í herbergjum og forstofu eru af vandaðri gerð frá Axis. Borðplötur eru í eldhúsi, baði og þvottahúsi þar sem við á og eru frá Axis.

Eldhúsinnrétting er sérsmíðuð af vandaðri gerð frá Axis ásamt vaski og Grohe blöndunartækjum frá Byko. Helluborð og blástursofn eru af gerðinni AEG frá Ormsson (sjá nánar á www.ormsson.is) Gufugleypir í eldhúsi er einnig frá Ormsson.
Baðherbergi: Baðinnrétting kemur frá Axis. Hreinlætistæki og handklæðaofn eru frá Byko. Salernið er upphengt og innbyggt. Hitastýrð blöndunartæki verða við sturtu. Gólf eru flísalögð og veggir að hluta upp í loft
Loftræsting: Sérstakt loftræstikerfi er fyrir hverja íbúð. Kerfið hefur loftskipti í íbúðinni með því að taka loft að utan og dæla því inn í vistarverurnar, herbergi og stofu, og soga lofti út úr baði, þvottahúsi og eldhúsi. Kerfið er með varmaendurvinnslu og nýtir við bestu aðstæður um 80% af varmanum. Kerfið er með loftsíum og er allt loft sem kemur inn síað. Ekki á að vera þörf á að opna glugga í íbúðinni til loftunnar.
Frágangur sameignar: Anddyri/stigahús er lokað og er það flísalagt á aðkomuhæð með uppsettum póstkössum. Stigar og stigapallar eru teppalagðir, handrið eru á stigagöngum. Allar útidyrahurðir frágengnar og er rafmagnsopnun á aðalinngöngum. Sameign er upphituð með ofnakerfi. Raflagnir í sameign eru fullbúnar með ljósum, sbr. teikningar. Loftræstilagnir eru lagðar skv. teikningu.

Sameign: Í bílgeymslu er lagt grunnkerfi fyrir bílhleðslu. Eigendur stæða í bílgeymslu geta sett upp eigin hleðslustöð og tengt inn á grunnkerfi bílgeymslu

Skólar og leikskólar eru í nágrenni og eru öruggar göngu- og hjólaleiðir að þeim. Einnig er fyrirhugað að nýr leikskóli rísi í næsta nágrenni.
Hverfið er í nálægð við náttúru og er staðsetningin einstök með tilliti til útivistar. Í næsta nágrenni er Ástjörn, Hvaleyrarvatn og ein vinsælasta gönguleiðin í Hafnarfirði, upp á Helgafell.

MótX ehf. er byggingaraðili verkefnisins og eigandi. MótX ehf. er alhliða byggingafélag og var stofnað árið 2005 og hefur starfað óslitið síðan. MótX ehf. hefur getið sér gott orð sem framleiðandi íbúðar- og iðnaðarhúsnæðis á þessum tíma. Félagið hefur fengið viðurkenningar, bæði fyrir hönnun bygginga og frágang lóða á nýbyggingasvæði.

Allar nánari upplýsingar veita:
Guðrún Þórhalla Helgadóttir löggiltur fasteignasali/viðskiptafræðingur í síma 820-0490 eða á netfangið gudrun@remax.is
Guðmundur Þór Júlíusson löggiltur fasteignasali í síma 858-7410 eða á netfangið gj@remax.is


Gjöld sem kaupandi þarf að standa straum af vegna kaupanna: 
1. Stimpilgjald af kaupsamningi - 0,8%(einstaklingar) 1.6% (lögaðilar) af heildarfasteignamati. 
2. Þinglýsingargjald af kaupsamningi, veðskuldabréfi, mögulegu veðleyfi o.fl. - kr. 2.700 af hverju skjali.
3. Lántökugjald lánastofnunar - almennt 45-75 þús.kr. Nánari upplýsingar á heimasíðu lánastofnana. 
4. Umsýslugjald til fasteignasölu kr. 69.900 mvsk.
Engin gögn fundust fyrir þessa eign
Byggt 2024
Fasteignanúmer
2529215
Byggingarefni
Steypt
Númer hæðar
B0
Númer eignar
32
Húsmat
0 kr.
Lóðarmat
0 kr.
Fasteignamat samtals
0 kr.
Brunabótamat
5.210.000 kr.
Matsstig
7 - Fullgerð bygging

Sambærilegar eignir

Skoða eignina Baughamar 23
Opið hús:25. jan. kl 14:00-14:30
Skoða eignina Baughamar 23
Baughamar 23
221 Hafnarfjörður
102.5 m2
Fjölbýlishús
413
780 þ.kr./m2
79.900.000 kr.
Skoða eignina Hringhamar 19,íb.206
Bílastæði
Opið hús:25. jan. kl 13:00-13:30
Hringhamar 19,íb.206
221 Hafnarfjörður
97.8 m2
Fjölbýlishús
413
797 þ.kr./m2
77.900.000 kr.
Skoða eignina Hringhamar 17,íb.503
Bílastæði
Opið hús:25. jan. kl 13:00-13:30
Hringhamar 17,íb.503
221 Hafnarfjörður
97.7 m2
Fjölbýlishús
312
849 þ.kr./m2
82.900.000 kr.
Skoða eignina Hringhamar 17,íb.502
Bílastæði
Opið hús:25. jan. kl 13:00-13:30
Hringhamar 17,íb.502
221 Hafnarfjörður
96.7 m2
Fjölbýlishús
312
857 þ.kr./m2
82.900.000 kr.
Fasteignaleitin
Öflugur fasteignaleitarvefur með einföldu og notendavænu viðmóti sem býður upp á ítarlegar upplýsingar um fasteignir, þróun verðlags og fróðleik um fasteignamarkaðinn.
Hafðu samband
© Copyright 2026 - Fasteignaleitin