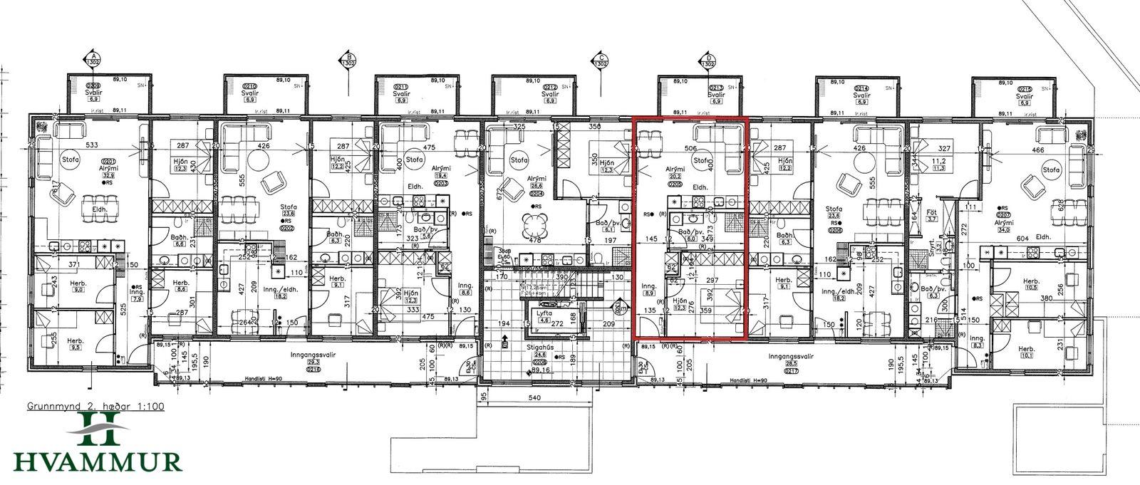
Elísabetarhagi 1 íbúð 205 - Falleg 2ja herbergja íbúð á 2. hæð í nýlegu (2021) fjölbýlishúsi með lyftu í Hagahverfi - stærð 61,6 m² þar af telur geymsla í kjallara 6,1 m²
Eignin skiptist í forstofu/gang, eldhús og stofu í opnu rými, eitt svefnherbergi og baðherbergi með þvottaaðstöðu. Í kjallara er sér geymsla og sameiginleg hjólageymsla.
Forstofa og gangur eru með vinyl parketi á gólfi og tvöföldum skáp. Eldhús er með vinyl parketi á gólfi og vandaðri tvílitri innréttingu með þiljum á milli skápa. Uppþvottavél er innfelld í innréttingu og fylgir með við sölu eignar. Stofa og eldhús eru í opnu rými, með vinyl parketi á gólfi og rennihurð út á steyptar svalir, skráðar 6,9 m² að stærð. Hönnun handriðs og svala er með þeim hætti að auðvelt er að koma fyrir svalalokun í framtíðinni. Svefnherbergi er með vinyl parketi á gólfi og sexföldum fataskáp. Stærð herbergis er skv. teikningum 12,3 m² Baðherbergi er með flísum á gólfi og hluta veggja og vandaðri innréttingu með stæði fyrir þvottavél. Upphengt wc og sturta með glerhurðum. Sér geymsla er í kjallara, skráð 6,1 m² að stærð.
Annað - Loftskiptikerfi er íbúðinni. - Öll loft íbúðinni að baðherbergi undaskildu eru klædd hljóðdempuðum loftaplötum. - Gólfhiti er í öllum rýmum. - Mynd-dyrasími. - Gæludýrahald er heimilt. - Fyrirhugað fasteignamat fyrir árið 2026 er kr. 48.050.000.-
Um skoðunar- og aðgæsluskyldu: Í lögum um fasteignakaup nr. 40/2002 er kveðið á um ríka skoðunarskyldu kaupenda á fasteignum. Fasteignasalan Hvammur skorar því á væntanlega kaupendur að kynna sér vel ástand fasteigna fyrir kauptilboðsgerð og leita til þar til bærra sérfræðinga um nánari skoðun ef með þarf. Forsendur söluyfirlits: Söluyfirlit er samið af fasteignasala í samræmi við ákvæði laga nr. 70/2015. Þær upplýsingar sem fram koma í söluyfirliti þessu eru sóttar í opinberar skrár, til seljanda sjálfs og eftir atvikum til húsfélags. Seljandi veitir upplýsingar um eign í samræmi við upplýsingaskyldu laga um fasteignakaup nr. 40/2002. Fasteignasali sannreynir að þær upplýsingar séu réttar með sjónskoðun á eigninni. Fasteignasali getur ekki fullyrt um ástand og eiginleika þeirra hluta fasteigna sem ekki eru aðgengilegir og sjást ekki berum augum, t.d. lagnir, dren, skólp og þak.
Elísabetarhagi 1 íbúð 205 - Falleg 2ja herbergja íbúð á 2. hæð í nýlegu (2021) fjölbýlishúsi með lyftu í Hagahverfi - stærð 61,6 m² þar af telur geymsla í kjallara 6,1 m²
Eignin skiptist í forstofu/gang, eldhús og stofu í opnu rými, eitt svefnherbergi og baðherbergi með þvottaaðstöðu. Í kjallara er sér geymsla og sameiginleg hjólageymsla.
Forstofa og gangur eru með vinyl parketi á gólfi og tvöföldum skáp. Eldhús er með vinyl parketi á gólfi og vandaðri tvílitri innréttingu með þiljum á milli skápa. Uppþvottavél er innfelld í innréttingu og fylgir með við sölu eignar. Stofa og eldhús eru í opnu rými, með vinyl parketi á gólfi og rennihurð út á steyptar svalir, skráðar 6,9 m² að stærð. Hönnun handriðs og svala er með þeim hætti að auðvelt er að koma fyrir svalalokun í framtíðinni. Svefnherbergi er með vinyl parketi á gólfi og sexföldum fataskáp. Stærð herbergis er skv. teikningum 12,3 m² Baðherbergi er með flísum á gólfi og hluta veggja og vandaðri innréttingu með stæði fyrir þvottavél. Upphengt wc og sturta með glerhurðum. Sér geymsla er í kjallara, skráð 6,1 m² að stærð.
Annað - Loftskiptikerfi er íbúðinni. - Öll loft íbúðinni að baðherbergi undaskildu eru klædd hljóðdempuðum loftaplötum. - Gólfhiti er í öllum rýmum. - Mynd-dyrasími. - Gæludýrahald er heimilt. - Fyrirhugað fasteignamat fyrir árið 2026 er kr. 48.050.000.-
Um skoðunar- og aðgæsluskyldu: Í lögum um fasteignakaup nr. 40/2002 er kveðið á um ríka skoðunarskyldu kaupenda á fasteignum. Fasteignasalan Hvammur skorar því á væntanlega kaupendur að kynna sér vel ástand fasteigna fyrir kauptilboðsgerð og leita til þar til bærra sérfræðinga um nánari skoðun ef með þarf. Forsendur söluyfirlits: Söluyfirlit er samið af fasteignasala í samræmi við ákvæði laga nr. 70/2015. Þær upplýsingar sem fram koma í söluyfirliti þessu eru sóttar í opinberar skrár, til seljanda sjálfs og eftir atvikum til húsfélags. Seljandi veitir upplýsingar um eign í samræmi við upplýsingaskyldu laga um fasteignakaup nr. 40/2002. Fasteignasali sannreynir að þær upplýsingar séu réttar með sjónskoðun á eigninni. Fasteignasali getur ekki fullyrt um ástand og eiginleika þeirra hluta fasteigna sem ekki eru aðgengilegir og sjást ekki berum augum, t.d. lagnir, dren, skólp og þak.
Dagsetning
Fasteignamat
Kaupverð
Stærð
Fermetraverð
Nothæfur samningur
03/05/2021
2.330.000 kr.
28.450.000 kr.
61.6 m2
461.850 kr.
Já
Byggt á upplýsingum úr Þjóðskrá Íslands frá 2006-2025
Öflugur fasteignaleitarvefur með einföldu og notendavænu viðmóti sem býður upp á ítarlegar upplýsingar um fasteignir, þróun verðlags og fróðleik um fasteignamarkaðinn.