Fasteignaleitin
Opið hús:17. mars kl 18:00-18:30
Skráð 4. okt. 2025

Hringhamar 19 (308)

Nýbygging • FjölbýlishúsHöfuðborgarsvæðið/Hafnarfjörður-221
81.4 m2
3 Herb.
2 Svefnh.
1 Baðherb.
Verð
69.900.000 kr.
Fermetraverð
858.722 kr./m2
Fasteignamat
46.250.000 kr.
Mynd af Andri Freyr Halldórsson
Andri Freyr Halldórsson
Löggiltur fasteignasali
Garður
Bílastæði
Sameig. Inng.
Fasteignanúmer
2529244_98
Landnúmer
231980
Húsgerð
Fjölbýlishús
Byggingarefni
Steypt
Númer hæðar
03
Hæðir í húsi
7
Hæðir í íbúð
1
Númer íbúðar
08
Vatnslagnir
Nýbygging
Raflagnir
Nýbygging
Frárennslislagnir
Nýbygging
Gluggar / Gler
Nýbygging
Þak
Nýbygging
Lóðarréttindi
Leigulóð
Svalir
Já.
Upphitun
Hitaveita.
Inngangur
Sameiginlegur
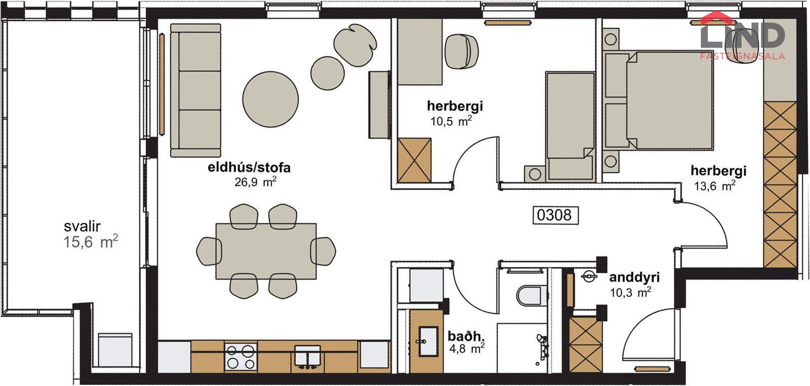
Íbúð 308 er þriggja herbergja með bílastæði í kjallara.
LIND Fasteignasala kynnir: Nýjar og glæsilegar íbúðir við Hringhamar 17-19 í nýju hverfi í Hamranesi í Hafnarfirði. Íbúðirnar afhendast án gólfefna. Allar íbúðir er búnar með sérstöku loftræstiskerfi. Umframgæði sem 
tryggja mjög góð loftskipti og góða nýtingu á varma. Eldhúsinnrétting er sérsmíðuð af vandaðri gerð frá Axis ásamt vaski og Grohe blöndunartækjum frá Byko. Helluborð og blástursofn eru af gerðinni AEG frá Ormsson (sjá nánar á www.ormsson.is) Gufugleypir í eldhúsi er einnig frá Ormsson. ATH húsið er í Svansvottunarferli.


// VILDARKORT LINDAR //
Við vekjum sérstaka athygli á því að allir kaupendur hjá Lind fasteignasölu fá Vildarkort Lindar sem veitir 30% afslátt hjá samstarfsaðilum okkar, en þeir eru:
Parki (gólfefni), Z brautir og gluggatjöld, Húsgagnahöllin, Betra bak, Dorma, Flügger litir, S. Helgason steinsmiðja, Vídd og Húsasmiðjan.

Íbúð 308: 81,4 fm 3ja herbergja íbúð á 3. hæð. Íbúðin er 81,4 fm þar af 4,3 fm geymsla, bílastæði í kjallara fylgir íbúðinni.
Allar nánari upplýsingar á heimasíðu verkefnisins www.hringhamar.is

ALLAR NÁNARI UPPLÝSINGAR VEITA:
ANDRI FREYR HALLDÓRSSON Í S: 762-6162 / ANDRI@FASTLIND.IS
KRISTJÁN ÞÓRIR HAUKSSON Í S: 696-1122 / KRISTJAN@FASTLIND.IS


Gólf íbúða eru fleytt og tilbúin fyrir endanlegt gólfefni, nema í baðherbergi og í þvottahúsi en þar eru flísar á gólfum. Einnig eru flísar á veggjum baðherbergja, flísar eru frá Parka. Fataskápar í herbergjum og forstofu eru af vandaðri gerð frá Axis. Borðplötur eru í eldhúsi, baði og þvottahúsi þar sem við á og eru frá Axis.

Eldhúsinnrétting er sérsmíðuð af vandaðri gerð frá Axis ásamt vaski og Grohe blöndunartækjum frá Byko. Helluborð og blástursofn eru af gerðinni AEG frá Ormsson (sjá nánar á www.ormsson.is) Gufugleypir í eldhúsi er einnig frá Ormsson.

Baðherbergi: Baðinnrétting kemur frá Axis. Hreinlætistæki og handklæðaofn eru frá Byko. Salernið er upphengt og innbyggt. Hitastýrð blöndunartæki verða við sturtu. Gólf eru flísalögð og veggir að hluta upp í loft

Loftræsting: Sérstakt loftræstikerfi er fyrir hverja íbúð. Kerfið hefur loftskipti í íbúðinni með því að taka loft að utan og dæla því inn í vistarverurnar, herbergi og stofu, og soga lofti út úr baði, þvottahúsi og eldhúsi. Kerfið er með varmaendurvinnslu og nýtir við bestu aðstæður um 80% af varmanum. Kerfið er með loftsíum og er allt loft sem kemur inn síað. Ekki á að vera þörf á að opna glugga í íbúðinni til loftunnar.

Frágangur sameignar: Anddyri/stigahús er lokað og er það flísalagt á aðkomuhæð með uppsettum póstkössum. Stigar og stigapallar eru teppalagðir, handrið eru á stigagöngum. Allar útidyrahurðir frágengnar og er rafmagnsopnun á aðalinngöngum. Sameign er upphituð með ofnakerfi. Raflagnir í sameign eru fullbúnar með ljósum, sbr. teikningar. Loftræstilagnir eru lagðar skv. teikningu.

Sameign: Í bílgeymslu er lagt grunnkerfi fyrir bílhleðslu. Eigendur stæða í bílgeymslu 
geta sett upp eigin hleðslustöð og tengt inn á grunnkerfi bílgeymslu

Skólar og leikskólar eru í nágrenni og eru öruggar göngu- og hjólaleiðir að þeim. Einnig er fyrirhugað að nýr leikskóli rísi í næsta nágrenni.
Hverfið er í nálægð við náttúru og er staðsetningin einstök með tilliti til útivistar. Í næsta nágrenni er Ástjörn, Hvaleyrarvatn og ein vinsælasta gönguleiðin í Hafnarfirði, upp á Helgafell.

Eignin afhendist skv meðfylgjandi skilalýsingu. 

ALLAR NÁNARI UPPLÝSINGAR VEITA:
KRISTJÁN ÞÓRIR HAUKSSON Í S: 696-1122 / KRISTJAN@FASTLIND.IS
ANDRI FREYR HALLDÓRSSON Í S: 762-6162 / ANDRI@FASTLIND.IS


Gjöld sem kaupandi þarf að standa straum af vegna kaupanna: 
1. Stimpilgjald af kaupsamningi - 0,8% af heildarfasteignamati, lögaðili greiðir 1,6%  
2. Þinglýsingargjald af kaupsamningi, veðskuldabréfi, mögulegu veðleyfi o.fl. - kr. 2.700 af hverju skjali. 
3. Lántökugjald lánastofnunar. Nánari upplýsingar á t.d. heimasíðu lánastofnana. 
4. Umsýslugjald til fasteignasölu 74.900.- með vsk. 
5. Kaupandi greiðir skipulagsgjald, 0,3% af brunabótamati, þegar það verður lagt á
Engin gögn fundust fyrir þessa eign
Byggt 2024
Fasteignanúmer
2529244
Byggingarefni
Steypt
Númer hæðar
B0
Númer eignar
40
Húsmat
0 kr.
Lóðarmat
0 kr.
Fasteignamat samtals
0 kr.
Brunabótamat
0 kr.

Myndir (22)

Sambærilegar eignir

Skoða eignina Grænaborg 14
Skoða eignina Grænaborg 14
Grænaborg 14
190 Vogar
92.2 m2
Fjölbýlishús
413
672 þ.kr./m2
62.000.000 kr.
Skoða eignina Hringhamar 19 (702)
Bílastæði
Opið hús:17. mars kl 18:00-18:30
Hringhamar 19 (702)
221 Hafnarfjörður
100.2 m2
Fjölbýlishús
312
927 þ.kr./m2
92.900.000 kr.
Skoða eignina Hringhamar 19 (701) ÞAKÍBÚÐ
Bílastæði
Opið hús:17. mars kl 18:00-18:30
Hringhamar 19 (701) ÞAKÍbúð
221 Hafnarfjörður
135 m2
Fjölbýlishús
322
962 þ.kr./m2
129.900.000 kr.
Skoða eignina Hringhamar 19 (701) ÞAKÍBÚÐ
Bílastæði
Opið hús:17. mars kl 18:00-18:30
Hringhamar 19 (701) ÞAKÍbúð
221 Hafnarfjörður
135 m2
Fjölbýlishús
322
962 þ.kr./m2
129.900.000 kr.
Fasteignaleitin
Öflugur fasteignaleitarvefur með einföldu og notendavænu viðmóti sem býður upp á ítarlegar upplýsingar um fasteignir, þróun verðlags og fróðleik um fasteignamarkaðinn.
Hafðu samband
© Copyright 2026 - Fasteignaleitin