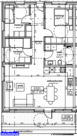
Hraunhamar fasteignasala kynnir í einkasölu fallega 91,7 fm 4ra herbergja íbúð í nýbyggingu í Stekkjarbergi 11. Íbúðin er afhent fullbúin með gólfefnum, innbyggðum ískáp og uppþvottavél. Sjá nánar í skilalýsingu. Húsið er byggt með forsteyptum einingum frá BM Vallá. Eigninni fylgir verönd sem útgengt er á úr stofu. Gólfefni eru harðparket og flísar.
Frábær staðsetning á skjólgóðum og fallegum stað í Setbergshverfinu.
Nánari lýsing: Anddyri með flísum á gólfi og fataskáp. Gangur Með harðparketi á gólfi. Stofa/eldhús er í alrými og með harðparketi á gólfi. Eldhúsinnrétting er frá HTH og öll tæki þ.e spanhelluborð, bakraofn, vifta, ísskápur og uppþvottavél frá Ormsson. Hjónaherbergi er með harðparketi á gólfi og góðum fataskápum. 2 Svefnherbergi er með harðparketi á gólfi og fataskáp. Baðherbergi er með flísum á gólf og veggjum í "walkin" sturtu. Innbyggð sturtæki frá Ísleifi Jónssyni ehf, innrétting með handlaug og speglaskáp frá HTH. Tenging fyrir þvottavél. Geymsla er í sérhúsi á lóð.
Nánari upplýsingar má finna í skilalýsingu.
Allar nánari upplýsingar veita: Valgerður Ása Gissurardóttir löggiltur fasteignasali s. 791-7500 vala@hraunhamar.is Einar Örn Ágústsson löggiltur fasteignasali s. 888-7979 einar@hraunhamar.is Glódís Helgadóttir, löggiltur fasteignasali s. 659-0510, glodis@hraunhamar.is Hlynur Halldórsson löggiltur fasteignasali s. 698-2603 hlynur@hraunhamar.is
Um skoðunar- og aðgæsluskyldu: Í lögum um fasteignakaup nr. 40/2002 er kveðið á um ríka skoðunarskyldu kaupenda á fasteignum. Hraunhamar fasteignasala bendir væntanlegum kaupendum á að kynna sér vel ástand fasteigna við skoðun og fyrir tilboðsgerð og ef þurfa þykir að leita til sérfræðinga um nánari ástandsskoðun.
Forsendur söluyfirlits: Söluyfirlit er samið af fasteignasala í samræmi við ákvæði laga nr. 70/2015. Þær upplýsingar sem fram koma í söluyfirliti þessu eru sóttar í opinberar skrár, til seljanda sjálfs og eftir atvikum til húsfélags. Seljandi veitir upplýsingar um eign í samræmi við upplýsingaskyldu laga um fasteignakaup nr. 40/2002. Fasteignasali sannreynir að þær upplýsingar séu réttar með sjónskoðun á eigninni. Fasteignasali getur ekki fullyrt um ástand og eiginleika þeirra hluta fasteigna sem ekki eru aðgengilegir og sjást ekki berum augum, t.d. lagnir, dren, skólp og þak.
Gjöld sem kaupandi þarf að standa straum af vegna kaupanna: 1. Stimpilgjald af kaupsamningi - 0,8%(einstaklingar) 1.6% (lögaðilar) af heildarfasteignamati. 2. Stimpilgjald af veðskuldabréfi - 0% af höfuðstól skuldabréfs. 3. Þinglýsingargjald af kaupsamningi, veðskuldabréfi, mögulegu veðleyfi o.fl. - kr. 2.700 af hverju skjali. 4. Lántökugjald lánastofnunar - almennt 0,5 - 1,0% af höfuðstól skuldabréfs. Nánari upplýsingar á t.d. heimasíðu lánastofnana. 5. Umsýslugjald til fasteignasölu kr.68.200.-m.vsk.
Hraunhamar fasteignasala kynnir í einkasölu fallega 91,7 fm 4ra herbergja íbúð í nýbyggingu í Stekkjarbergi 11. Íbúðin er afhent fullbúin með gólfefnum, innbyggðum ískáp og uppþvottavél. Sjá nánar í skilalýsingu. Húsið er byggt með forsteyptum einingum frá BM Vallá. Eigninni fylgir verönd sem útgengt er á úr stofu. Gólfefni eru harðparket og flísar.
Frábær staðsetning á skjólgóðum og fallegum stað í Setbergshverfinu.
Nánari lýsing: Anddyri með flísum á gólfi og fataskáp. Gangur Með harðparketi á gólfi. Stofa/eldhús er í alrými og með harðparketi á gólfi. Eldhúsinnrétting er frá HTH og öll tæki þ.e spanhelluborð, bakraofn, vifta, ísskápur og uppþvottavél frá Ormsson. Hjónaherbergi er með harðparketi á gólfi og góðum fataskápum. 2 Svefnherbergi er með harðparketi á gólfi og fataskáp. Baðherbergi er með flísum á gólf og veggjum í "walkin" sturtu. Innbyggð sturtæki frá Ísleifi Jónssyni ehf, innrétting með handlaug og speglaskáp frá HTH. Tenging fyrir þvottavél. Geymsla er í sérhúsi á lóð.
Nánari upplýsingar má finna í skilalýsingu.
Allar nánari upplýsingar veita: Valgerður Ása Gissurardóttir löggiltur fasteignasali s. 791-7500 vala@hraunhamar.is Einar Örn Ágústsson löggiltur fasteignasali s. 888-7979 einar@hraunhamar.is Glódís Helgadóttir, löggiltur fasteignasali s. 659-0510, glodis@hraunhamar.is Hlynur Halldórsson löggiltur fasteignasali s. 698-2603 hlynur@hraunhamar.is
Um skoðunar- og aðgæsluskyldu: Í lögum um fasteignakaup nr. 40/2002 er kveðið á um ríka skoðunarskyldu kaupenda á fasteignum. Hraunhamar fasteignasala bendir væntanlegum kaupendum á að kynna sér vel ástand fasteigna við skoðun og fyrir tilboðsgerð og ef þurfa þykir að leita til sérfræðinga um nánari ástandsskoðun.
Forsendur söluyfirlits: Söluyfirlit er samið af fasteignasala í samræmi við ákvæði laga nr. 70/2015. Þær upplýsingar sem fram koma í söluyfirliti þessu eru sóttar í opinberar skrár, til seljanda sjálfs og eftir atvikum til húsfélags. Seljandi veitir upplýsingar um eign í samræmi við upplýsingaskyldu laga um fasteignakaup nr. 40/2002. Fasteignasali sannreynir að þær upplýsingar séu réttar með sjónskoðun á eigninni. Fasteignasali getur ekki fullyrt um ástand og eiginleika þeirra hluta fasteigna sem ekki eru aðgengilegir og sjást ekki berum augum, t.d. lagnir, dren, skólp og þak.
Gjöld sem kaupandi þarf að standa straum af vegna kaupanna: 1. Stimpilgjald af kaupsamningi - 0,8%(einstaklingar) 1.6% (lögaðilar) af heildarfasteignamati. 2. Stimpilgjald af veðskuldabréfi - 0% af höfuðstól skuldabréfs. 3. Þinglýsingargjald af kaupsamningi, veðskuldabréfi, mögulegu veðleyfi o.fl. - kr. 2.700 af hverju skjali. 4. Lántökugjald lánastofnunar - almennt 0,5 - 1,0% af höfuðstól skuldabréfs. Nánari upplýsingar á t.d. heimasíðu lánastofnana. 5. Umsýslugjald til fasteignasölu kr.68.200.-m.vsk.
Dagsetning
Fasteignamat
Kaupverð
Stærð
Fermetraverð
Nothæfur samningur
12/11/2021
84.950.000 kr.
100.000.000 kr.
221.2 m2
452.079 kr.
Já
Byggt á upplýsingum úr Þjóðskrá Íslands frá 2006-2025
Öflugur fasteignaleitarvefur með einföldu og notendavænu viðmóti sem býður upp á ítarlegar upplýsingar um fasteignir, þróun verðlags og fróðleik um fasteignamarkaðinn.