Fasteignaleitin
Skráð 25. júlí 2025

SPÁNAREIGNIR -San Miguel De Salinas

FjölbýlishúsÚtlönd/Spánn/Costa Blanca
100 m2
3 Herb.
2 Svefnh.
2 Baðherb.
Verð
32.800.000 kr.
Fermetraverð
328.000 kr./m2
Mynd af Aðalheiður Karlsdóttir
Aðalheiður Karlsdóttir
Löggiltur fasteignasali
http://www.spanareignir.isEignalisti
Garður
Bílastæði
Sameig. Inng.
Fasteignanúmer
120250726
Landnúmer
0
Húsgerð
Fjölbýlishús
Númer hæðar
0
Vatnslagnir
nýtt
Raflagnir
nýtt
Frárennslislagnir
nýtt
Gluggar / Gler
nýtt
Þak
nýtt
Lóðarréttindi
Eignarlóð
Svalir
Svalir
Upphitun
Kæling/hiti
Inngangur
Sameiginlegur
SPÁNAREIGNIR KYNNIR:
*NOTALEGAR OG VEL STAÐSETTAR ÍBÚÐIR Í EKTA SPÆNSKUM SMÁBÆ - FRÁBÆR VERÐ"
*VANDAÐUR HÚSGAGNAPAKKI OG RAFMAGNSTÆKI FYLGIR*
Fallegar og vel hannaðar nýjar íbúðir á frábæru verði á góðum stað í San Miguel de Salinas, rótgrónum spænskum smábæ rétt hjá fjölmörgum góðum golfvöllum og í örstuttu göngufæri frá verslunum, veitingastöðum, skóla, götumarkaði ofl. sem gerir lífið á Spáni skemmtilegt.  Um 40-50 mín akstur suður af Alicante.
Hægt er að velja um jarðhæð með sér garði, mið hæðir með stórum svölum eða penthouse með stórum svölum og sér þaksvölum. Flottur sundlaugargarður, fallegt umhverfi. Einstakt tækifæri til að eignast góða íbúð á frábæru verði.

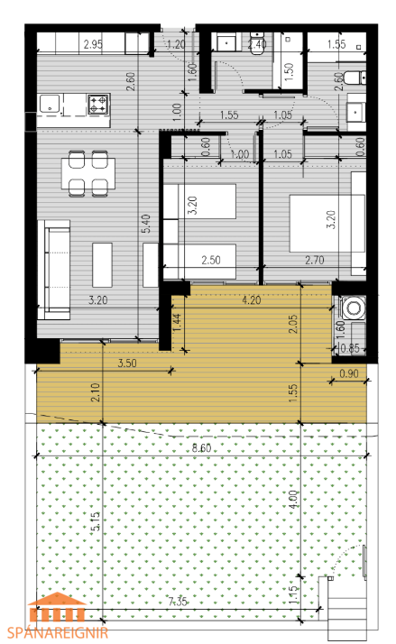
Tvö svefnherbergi og tvö baðherbergi, góð stofa, borðstofa og eldhús í opnu rými.  Glæsilegur sameiginlegur sundlaugargarði með góðri aðstöðu og skemmtilegu leiksvæði fyrir börnin.

Sérbílastæði.
Vandaður húsgagnapakki, rafmagnstæki og allur húsbúnaður fylgir.

Allar upplýsingar gefa
Aðalheiður Karlsdóttir, löggiltur fasteignasali. GSM 00354 893 2495. adalheidur@spanareignir.is,
Berta Hawkins, löggiltur fasteignasali,  GSM 0034 615 112 869. berta@spanareignir.is

Sennilega ein bestu kaupin á svæðinu í dag.


Nánari lýsing:
Rúmgóð stofa og borðstofa í opnu rými, vel tengt eldhúsi.
Tvö svefnherbergi og tvö baðherbergi. 
Sérlega vandaðar og fallegar íbúðir.

Mikið innifalið
Sér bílastæði í bílakjallara eða á lokuðu svæði.
Sundlaugargarður.
Leiksvæði fyrir börnin
Innbyggt kerfi fyrir loftkælingu og hitun
Fjarstýrðar rafmagnsgardínur
Innbyggð lýsing
Aerothermal hitun á vatni.
Húsgögn og heimilistæki fylgja.
Sem sagt, allt sem þarf til að flytja inn og byrja að njóta frá fyrsta degi.

Verð miðað við gengi 1Evra=145ISK:
Íbúð með tveimur svefnherb. + tveimur baðh. Verð frá 224.000 Evrum (ISK 32.800.000) + 10%skattur og ca. 3% kostnaður við kaupin.

Íbúðin er 76 fm.
Verönd 24 fm.
Samtals 100 sérafnotafermetrar.+
Auk þess sér bílastæði.

Íbúðirnar afhendast tilbúnar í desember 2026 - apríl 2027.

Þessar íbúðir voru að koma í sölu og því rétti tíminn til að velja sér góða íbúð.

San Miguel de Salinas er notalegur, hefðbundinn spænskur bær með sál og sjarma, kirkjutorgi og götumarkaði.
Hér er um að ræða notalega eign í rólegu og fallegu umhverfi. Tilvalið fyrir ungar barnafjölskyldur sem vilja búa í sól og góðu veðri allt árið, enda er góður skóli í örstuttu göngufæri og öll þjónusta í nærumhverfi. Einnig draumastaður golfarans sem vill spila marga og skemmtilega golfvelli.


SKOÐUNARFERÐIR:
Við aðstoðum kaupendur við að skipuleggja skoðunarferðir og tökum þátt í kostnaði vegna þeirra, ef af viðskiptum verður.
Mögulegt er að fjármagna hluta kaupverðs með hagstæðu láni frá spænskum banka.

Við höfum selt fasteignir á Spáni síðan 2001. Tryggir þekkingu, reynslu og öryggi.
Sjá nánar um fasteignakaup á Spáni á heimasíðunni okkar: www.spanareignir.is


Við erum rótgróin íslensk fasteignasala og höfum um árabil sérhæft okkur í sölu fasteigna á Spáni.
Löggiltur íslenskur fasteignasali með mikla reynslu af fasteignasölu á Spáni sér um allt söluferlið og leggur áherslu á trausta og örugga þjónustu.
Í boði eru góðar heildarlausnir þar sem öllu kaupferlinu er fylgt vel eftir frá upphafi til enda.
Við aðstoðum við að skipuleggja skoðunarferðina, velja staðsetningu og heppilega eign, kaupsamningsgerð, útvegum NIE númer, aðstoðum við fjármögnun, bankamál og allt sem til fellur.
Þú ert í góðum höndum hjá okkur.


Meira um SAN MIGUEL DE SALINAS:
San Miguel de Salinas er skemmtilegur spænskur bær í aðeins 15 mínútna akstursfjarlægð frá ströndum Mil Palmeras, Campoamor, Cabo Roig, La Zenia, Torrevieja, La Mata, Guardamar o.fl.  Bærinn er umkringdur fallegri sveit þar sem augað lítur fallega sítrus- og möndlurækt og þjóðlendu garð Sierra Escalona rétt við þröskuldinn. Hægt er að ganga og hjóla marga kílómetra meðfram síkinu sem liggur rétt við bæinn.
 
Í San Miguel de Salinas er mikið úrval af skemmtilegum veitingastöðum, bæði spænskum og alþjóðlegum (tæplega 30 í miðbænum einum. Árlega eru skemmtilegar bæjarhátíðir eins og td. hin vinsæla TAPAS fiesta. Ef þú ert að leita að áfangastað til að dvelja í fríum, eða stað til að búa á allt árið um kring, þá er San Miguel de Salinas frábær kostur þar sem í bænum hefur þú alla nauðsynlega þjónustu og  öll  þægindi (góðir grunn- og framhaldsskólar, bankar, heilsugæslustöð sem er opin allan sólarhringinn, apótek, góð aðstaða til íþrótta, td. sundlaug, fótbolta- og frjálsíþróttavöllur, tennisvellir, padelvellir, körfuboltavellir, petanca ofl.
Í bænum er líka skemmtileg  blanda af spænskum og alþjóðlegum nágrönnum.
 
Stemmingin er þægileg og afslappandi og verð á börum og veitingastöðum hafa tilhneigingu til að vera lægri en á ströndinni, td. glas af góðu rauðvíni beint úr tunnunni. Vikulegur miðvikudagsmarkaður er frábært tækifæri til að birgja sig upp af staðbundnum ferskum ávöxtum og grænmeti, skinkum, ostum, ólífum, fötum og skóm o.s.frv., áður en þú færð þér drykk og tapas í einni af vinalegu tavernunum í bænum!
 
Það er góð  leigubílaþjónusta á staðnum og almenningsvagnar ganga nokkrum sinnum á dag til Torrevieja, Orihuela og Murcia.
Alicante og Murcia flugvöllur eru báðir í um 40-50 mínútna akstursfjarlægð. Netfyrirtækið á staðnum býður upp á áreiðanlegar, háhraða (ljósleiðara) nettengingar, sem auðveldar fólki að vinna í fjarvinnu.
San Miguel er staður þar sem þú nýtur hefðbundins  spænsks lífstíls og menningar, án þess að fórna þægindum af fyrsta flokks aðstöðu og umhverfi.
San Miguel de Salinas er sérlega vinalegur bær sem við vitum að þú munt elska!


Kostnaður við kaupin:
10% IVA (spænskur söluskattur) af kaupverði eignarinnar. Auk þess má gera ráð fyrir ca. 3% kostnaði vegna stimpilgjalda og annars kostnaðar við kaupin, þ.e. samtals getur kostnaður vegna kaupa á fasteign á Spáni því farið upp í ca. 13%.

Eiginleikar: ný eign, sér garður, svalir, air con, sameiginlegur sundlaugargarður, bílastæði, þaksvalir,
Svæði: Costa Blanca, San Miguel de Salinas,
 
Engin gögn fundust fyrir þessa eign
Fasteignanúmer
120250726

Myndir (43)

Sambærilegar eignir

Skoða eignina Valshólar 4
Skoða eignina Valshólar 4
Valshólar 4
111 Reykjavík
89 m2
Fjölbýlishús
312
718 þ.kr./m2
63.900.000 kr.
Skoða eignina SPÁNAREIGNIR - Benijofar
SPÁNAREIGNIR - Benijofar
Spánn - Costa Blanca
186 m2
Einbýlishús
433
350 þ.kr./m2
65.100.000 kr.
Skoða eignina Jöfursbás 7C
Bílastæði
Opið hús:28. maí kl 16:30-17:00
Skoða eignina Jöfursbás 7C
Jöfursbás 7C
112 Reykjavík
95.5 m2
Fjölbýlishús
312
805 þ.kr./m2
76.900.000 kr.
Skoða eignina Silfursmári 2
Bílastæði
Skoða eignina Silfursmári 2
Silfursmári 2
201 Kópavogur
116.1 m2
Fjölbýlishús
312
1197 þ.kr./m2
139.000.000 kr.
Fasteignaleitin
Öflugur fasteignaleitarvefur með einföldu og notendavænu viðmóti sem býður upp á ítarlegar upplýsingar um fasteignir, þróun verðlags og fróðleik um fasteignamarkaðinn.
Hafðu samband
© Copyright 2026 - Fasteignaleitin