Fasteignaleitin
Skráð 21. okt. 2025
Deila eign
Deila

Fossvogsvegur 12

Nýbygging • FjölbýlishúsHöfuðborgarsvæðið/Reykjavík/Háaleitis- og Bústaðahverfi-108
169.8 m2
4 Herb.
3 Svefnh.
1 Baðherb.
Verð
205.000.000 kr.
Fermetraverð
1.207.303 kr./m2
Fasteignamat
58.050.000 kr.
Brunabótamat
0 kr.
Mynd af Sigríður Rut Stanleysdóttir
Sigríður Rut Stanleysdóttir
Löggiltur fasteignasali
Þvottahús
Garður
Bílastæði
Sérinng.
Fasteignanúmer
2534947
Húsgerð
Fjölbýlishús
Byggingarefni
Steypt
Númer hæðar
1
Hæðir í íbúð
2
Númer íbúðar
10
Vatnslagnir
nýtt
Raflagnir
nýtt
Frárennslislagnir
nýtt
Gluggar / Gler
tvöfalt gler
Þak
nýtt
Lóðarréttindi
Leigulóð
Svalir
svalir og verönd
Upphitun
gólfhiti
Inngangur
Sérinngangur
Matsstig
4 - Fokheld bygging
Sigríður Rut, lgfs. í gsm. 699-4610 og Fasteignasalan TORG kynna: Sala er hafin á stórglæsilegu tengihúsi við Fossvogsveg 8-36 í Reykjavík. Húsið er staðsett í Fossvognum nánar tiltekið fyrir neðan Borgarspítalann á einstaklega veðursælum og fallegum stað.
Húsið er 3ja hæða. Fjórar sérhæðir eru á efstu hæðinni með stórum þaksvölum og sérlyftum. Ellefu tveggja hæða íbúðir (hálfgerð raðhús) eru á miðhæð og jarðhæð. Bílageymsla er einnig á jarðhæð en innangegnt er í íbúðirnar frá bílageymslu (alla nema eina íbúð). Samtals eru fimmtán íbúðir í húsinu. Öllum íbúðum fylgja stæði í bílageymslu en einnig eru sameiginleg bílastæði á lóð. Íbúðirnar verða búnar vönduðum innréttingum frá Brúnás og eldhústækjum frá Ormsson.
Borðplötur verða úr Virgo Quartz steini frá S.Helgasyni. Á baðherbergjum eru gólf flísalögð og veggir flísalagðir upp í loft. Þau verða búin vönduðum hreinlætistækjum, hitastýrðum blöndunartækjum, upphengdum salernum og sturtum með glerhlið. Innréttingar og innihurðir eru vandaðar, sjá nánar í skilalýsingu. Efri hæðirnar eru með stórum þaksvölum en hinar íbúðirnar með góðum svölum á miðhæðinni og timburverönd á jarðhæðinni.
Sameign verður frágengin utan sem innan. Gangstéttar við húsið verða með snjóbræðslukerfi skv teikningum.
Áætlað er að íbúðir við Fossvogsveg verði afhentar í febrúar 2026.  Traustur byggingaraðili Byggingarfélag Gylfa og Gunnars hf.  Sjá nánar inná vefnum
 Heimasíða
Allar nánari upplýsingar veitir Sigríður Rut lgfs.  í gsm. 699-4610 eða siggarut@fstorg.is og Helgi lgfs.  í gsm 780-2700 eða helgi@fstorg.is 

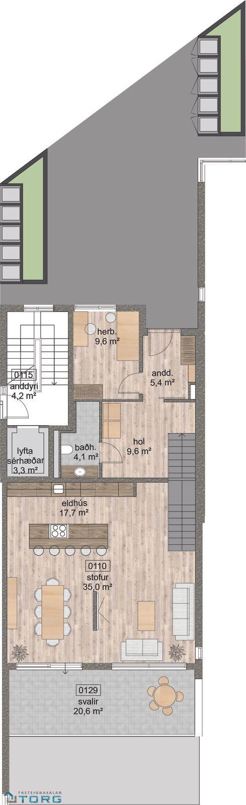
Fossvogsvegur 12 (íbúð 110 )  Glæsileg og vel skipulögð 4. herbergja íbúð á tveimur hæðum með sérinngangi í fallegu nýju álklæddu húsi.
Birt stærð er 169,8 fm. Stæði íbílageymslu merkt B-13 Íbúðinni fylgir bæði svali og verönd
Íbúðin er öll hin glæsilegasta með fallegum innréttingum frá Brúnás. Borðplötur verða úr Virgo Quartz steini frá S.Helgasyni. Vönduð AEG eldhústæki þ.m.t. innbygður frystiskápur, innbyggður kæliskápur, innbyggð uppþvottavél, vínkælir, bakarofn og örbylgjuofn.  Baðherbergi verður flísalagt gólf og veggir.  Íbúðin er með gólfhita.  Rúmgóðar svalir út frá stofu á efri hæð og góð verönd útfrá neðri hæð.
Allar nánari upplýsingar veitir Sigríður Rut lgfs.  í gsm. 699-4610 eða siggarut@fstorg.is og Helgi lgfs.  í gsm 780-2700 eða helgi@fstorg.is 


Nánari lýsing:
Efri hæð:
Komið er inn í forstofu með góðum fataskáp.
Hol  er má nýta sem lítið sjónvarpshol
Baðherbergi með flísum á gólfi og veggjum, stórri sturtu með glerþili, innbyggðum vönduðum blöndunartækjum, og fallegri innréttingu. 
Svefnherbergi með góðum fataskáp.
Eldhús með glæsilegri innréttingu og vönduðum AEG eldhústækjum. 
Stofa með útgengi út á rúmgóðar svalir.  
Neðri hæð:
Svefnherbergi eða sjónvarpshol með útgengi út á timburlagða verönd með skjólveggjum.
Baðherbergi með flísum á gólfi og veggjum, stórri sturtu með glerþili, innbyggðum vönduðum blöndunartækjum, og fallegri innréttingu.  
Hjónaherbergi með fataherbergi innaf og útgengi út á veröndina.
Þvottahús með flísum á gólfi og innréttingu.
Sérgeymsla innaf þvottahúsi.
Innangegnt frá litlu geymsluholi inn í bílageymsluna.

Í kjallara er stæði í lokaðri bílageymslu þar sem er innangegnt inn í allar íbúðir nema íbúð 0101.
Sameiginleg hjóla- og vagnageymsla í kjallara.

Áætlað er að íbúðirnar verði afhentar í febrúar 2026.

Kostnaður kaupanda:
1. Stimpilgjald af kaupsamningi er 0,8% af heildarfasteignamati, 1,6% fyrir lögaðila, en 0,4% við fyrstu kaup einstaklinga.
2. Þinglýsingargjald er 2700,- kr af hverju skjali.
3. Lántökugjald skv. verðskrá fjármálastofnunar.
4. Umsýsluþóknun skv. gjaldskrá fasteignasölu.
5. Kaupandi greiðir skipulagsgjald, 0,3% af brunabótamati, þegar það verður lagt á


 
Engin gögn fundust fyrir þessa eign
Fasteignanúmer
2534947
Byggingarefni
Steypt
Númer hæðar
B1
Númer eignar
3
Húsmat
0 kr.
Lóðarmat
0 kr.
Fasteignamat samtals
0 kr.
Brunabótamat
0 kr.
Matsstig
4 - Fokheld bygging

Sambærilegar eignir

Skoða eignina Fossvogsvegur 28
Bílastæði
Skoða eignina Fossvogsvegur 28
Fossvogsvegur 28
108 Reykjavík
170.5 m2
Fjölbýlishús
413
1202 þ.kr./m2
205.000.000 kr.
Skoða eignina Fossvogsvegur 32
Bílastæði
Skoða eignina Fossvogsvegur 32
Fossvogsvegur 32
108 Reykjavík
189.1 m2
Fjölbýlishús
514
1163 þ.kr./m2
220.000.000 kr.
Skoða eignina Fossvogsvegur 24
Bílastæði
Skoða eignina Fossvogsvegur 24
Fossvogsvegur 24
108 Reykjavík
189.2 m2
Fjölbýlishús
514
1163 þ.kr./m2
220.000.000 kr.
Skoða eignina Fossvogsvegur 20
Bílastæði
Skoða eignina Fossvogsvegur 20
Fossvogsvegur 20
108 Reykjavík
170.7 m2
Fjölbýlishús
413
1201 þ.kr./m2
205.000.000 kr.
Fasteignaleitin
Öflugur fasteignaleitarvefur með einföldu og notendavænu viðmóti sem býður upp á ítarlegar upplýsingar um fasteignir, þróun verðlags og fróðleik um fasteignamarkaðinn.
Hafðu samband
© Copyright 2025 - Fasteignaleitin