Fasteignaleitin
Opið hús:02. nóv. kl 16:30-17:00
Skráð 30. okt. 2025
Deila eign
Deila

Úugata 36

Nýbygging • RaðhúsHöfuðborgarsvæðið/Mosfellsbær-270
239.2 m2
6 Herb.
4 Svefnh.
2 Baðherb.
Verð
148.400.000 kr.
Fermetraverð
620.401 kr./m2
Fasteignamat
82.600.000 kr.
Brunabótamat
0 kr.
Friðjón Örn Magnússon
löggiltur fasteignasali
Eignir í sölu
Byggt 2025
Garður
Sérinng.
Fasteignanúmer
2524813
Húsgerð
Raðhús
Byggingarefni
Steypt
Númer íbúðar
10101
Vatnslagnir
Upphaflegar
Raflagnir
Upphaflegar
Svalir
1
Upphitun
Hitaveita
Inngangur
Sérinngangur
Byggingarstig
4 - Fokheld bygging

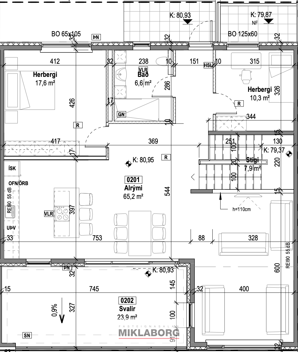
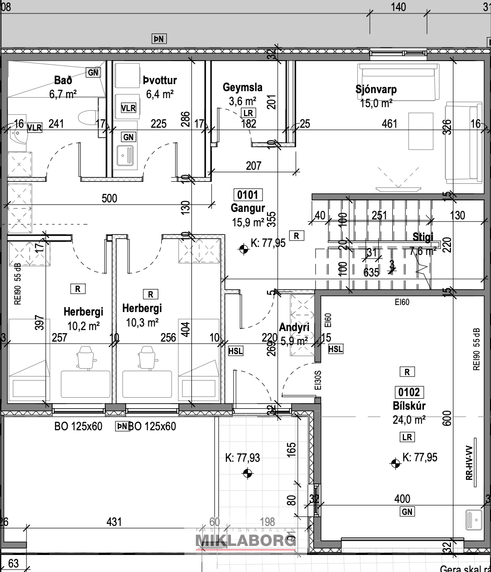
Miklaborg kynnir: BÓKIÐ SKOÐUN - SÝNI SAMDÆGURS ! Glæsilegt og vel skipulagt raðhús í nýlegu og fjölskylduvænu hverfi í Mosfellsbæ. Um er að ræða nýbyggt raðhús sem verður afhent tilbúið til tréverks. Fullkomið heimili fyrir fjölskylduna. Raðhúsið er samtals 239,2 m2 og þar af er bílskúr 27,9 m2. Fjögur svefnherbergi, sjónvarpshol, tvö baðherbergi, þvottahús, geymsla, eldhús, stofa og borðstofa, bílskúr. Örstutt í leik- og grunnskóla. Reykjalundaskógur, Helgafell og Reykjafell í næsta nágrenni. Nánari upplýsingar veita Friðjón Örn Magnússon, lögg. fasteignasali í síma 692-2704 eða fridjon@miklaborg.is og Ólafur Finnabogason, lögg. fasteignasali í síma 822-2307 eða olafur@miklaborg.is

Nánari lýsing

Um er að ræða nýbyggt tvílyft miðjuraðhús með innbyggðum bílskúr sem verður afhent tilbúið til tréverks, fullklárað að utan og frágengin lóð. Aðgengi að húsinu fyrir akandi og gangangi umferð frá Úugötu að suðvestan. Húsið er staðsteypt. Útveggir einangraðir að utanverðu með steinull, klætt með álkæðningu. Þakplatan er steypt. Gluggar eru verksmiðjuframleiddir ál / timbur gluggar. Gler er tvöfalt K-gler. Húsið er upphitað með gólfhitalögnum.

Fullkomið heimili fyrir fjölskylduna. Raðhúsið er samtals 239,2 m2 og þar af er bílskúr 27,9 m2. Fjögur svefnherbergi, sjónvarpshol, tvö baðherbergi, þvottahús, geymsla, eldhús, stofa og borðstofa, útengt á stórar svalir frá borðstofu sem snúa í suðvestur, bílskúr. ATH ! Myndir að innan eru tölvugerðar.

Örstutt í leik- og grunnskóla. Reykjalundaskógur, Helgafell og Reykjafell í næsta nágrenni.

Nánari upplýsingar veita Friðjón Örn Magnússon, lögg. fasteignasali í síma 692-2704 eða fridjon@miklaborg.is og Ólafur Finnabogason, lögg. fasteignasali í síma 822-2307 eða olafur@miklaborg.is

Engin gögn fundust fyrir þessa eign

Sambærilegar eignir

Skoða eignina Litlikriki 47
Bílskúr
Skoða eignina Litlikriki 47
Litlikriki 47
270 Mosfellsbær
259.9 m2
Parhús
836
615 þ.kr./m2
159.900.000 kr.
Skoða eignina Úugata 40
Opið hús:02. nóv. kl 16:30-17:00
uugata_framan2.jpg
Skoða eignina Úugata 40
Úugata 40
270 Mosfellsbær
239.2 m2
Raðhús
624
648 þ.kr./m2
154.900.000 kr.
Skoða eignina Úugata 34
Opið hús:02. nóv. kl 16:30-17:00
úugata_framan.JPEG
Skoða eignina Úugata 34
Úugata 34
270 Mosfellsbær
239.2 m2
Raðhús
624
648 þ.kr./m2
154.900.000 kr.
Skoða eignina Úugata 38
Opið hús:02. nóv. kl 16:30-17:00
úugata_framan3.jpg
Skoða eignina Úugata 38
Úugata 38
270 Mosfellsbær
239.2 m2
Raðhús
624
620 þ.kr./m2
148.400.000 kr.
Fasteignaleitin
Öflugur fasteignaleitarvefur með einföldu og notendavænu viðmóti sem býður upp á ítarlegar upplýsingar um fasteignir, þróun verðlags og fróðleik um fasteignamarkaðinn.
Hafðu samband
© Copyright 2025 - Fasteignaleitin