Fasteignaleitin
Opið hús:02. nóv. kl 16:30-17:00
Skráð 30. okt. 2025
Deila eign
Deila

Úugata 40

Nýbygging • RaðhúsHöfuðborgarsvæðið/Mosfellsbær-270
239.2 m2
6 Herb.
4 Svefnh.
2 Baðherb.
Verð
154.900.000 kr.
Fermetraverð
647.575 kr./m2
Fasteignamat
84.450.000 kr.
Brunabótamat
0 kr.
Friðjón Örn Magnússon
löggiltur fasteignasali
Eignir í sölu
Byggt 2025
Garður
Sérinng.
Fasteignanúmer
2524817
Húsgerð
Raðhús
Byggingarefni
Steypt
Númer íbúðar
10101
Vatnslagnir
Upphaflegar
Raflagnir
Upphaflegar
Svalir
1
Upphitun
Hitaveita
Inngangur
Sérinngangur
Byggingarstig
4 - Fokheld bygging

Miklaborg kynnir: BÓKIÐ SKOÐUN - SÝNI SAMDÆGURS ! Glæsilegt og vel skipulagt raðhús í nýlegu og fjölskylduvænu hverfi í Mosfellsbæ. Um er að ræða nýbyggt raðhús sem verður afhent tilbúið til tréverks. Fullkomið heimili fyrir fjölskylduna. Raðhúsið er samtals 239,2 m2 og þar af er bílskúr 27,9 m2. Örstutt í leik- og grunnskóla. Reykjalundaskógur, Helgafell og Reykjafell í næsta nágrenni. Nánari upplýsingar veita Friðjón Örn Magnússon, lögg. fasteignasali í síma 692-2704 eða fridjon@miklaborg.is og Ólafur Finnabogason, lögg. fasteignasali í síma 822-2307 eða olafur@miklaborg.is

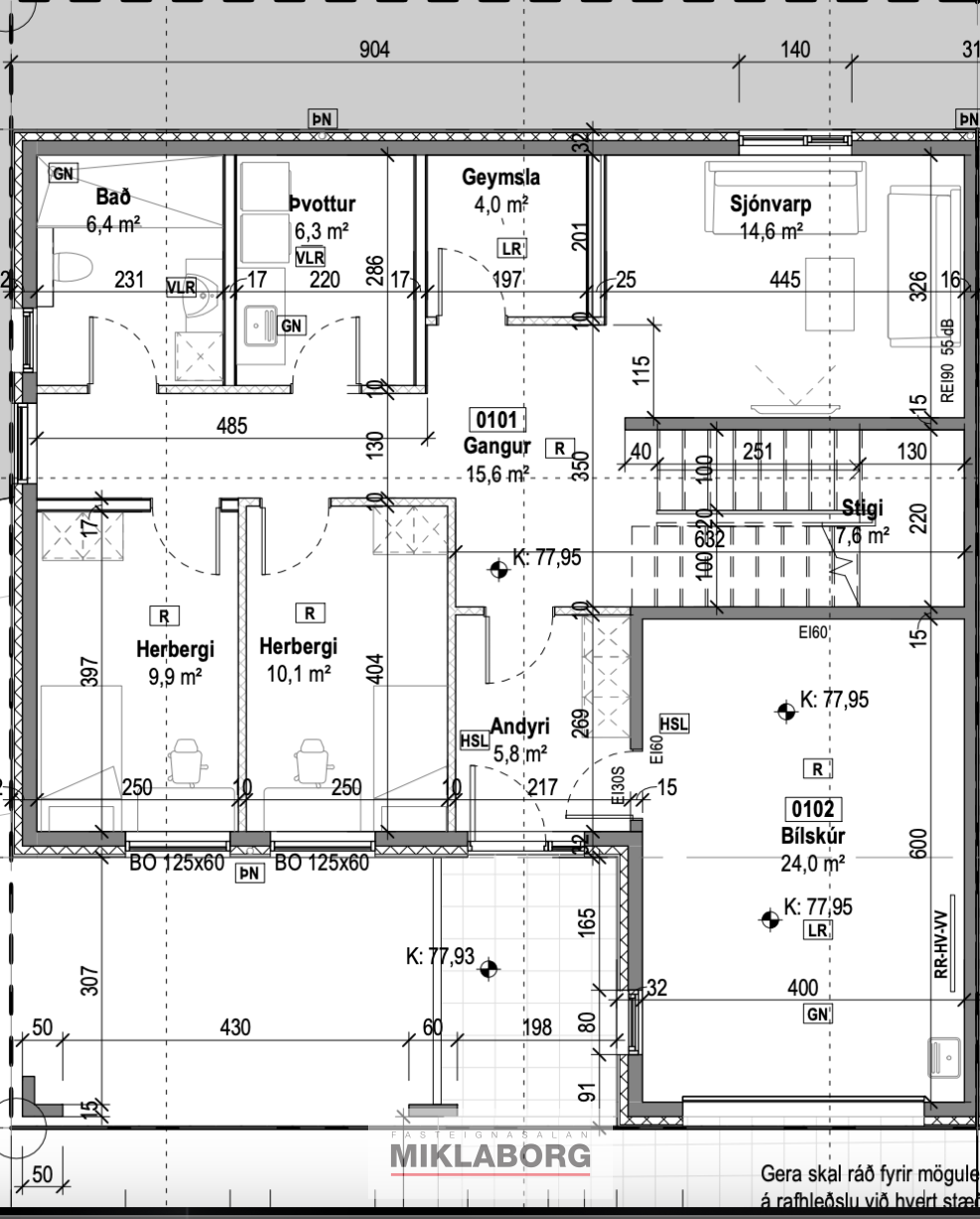
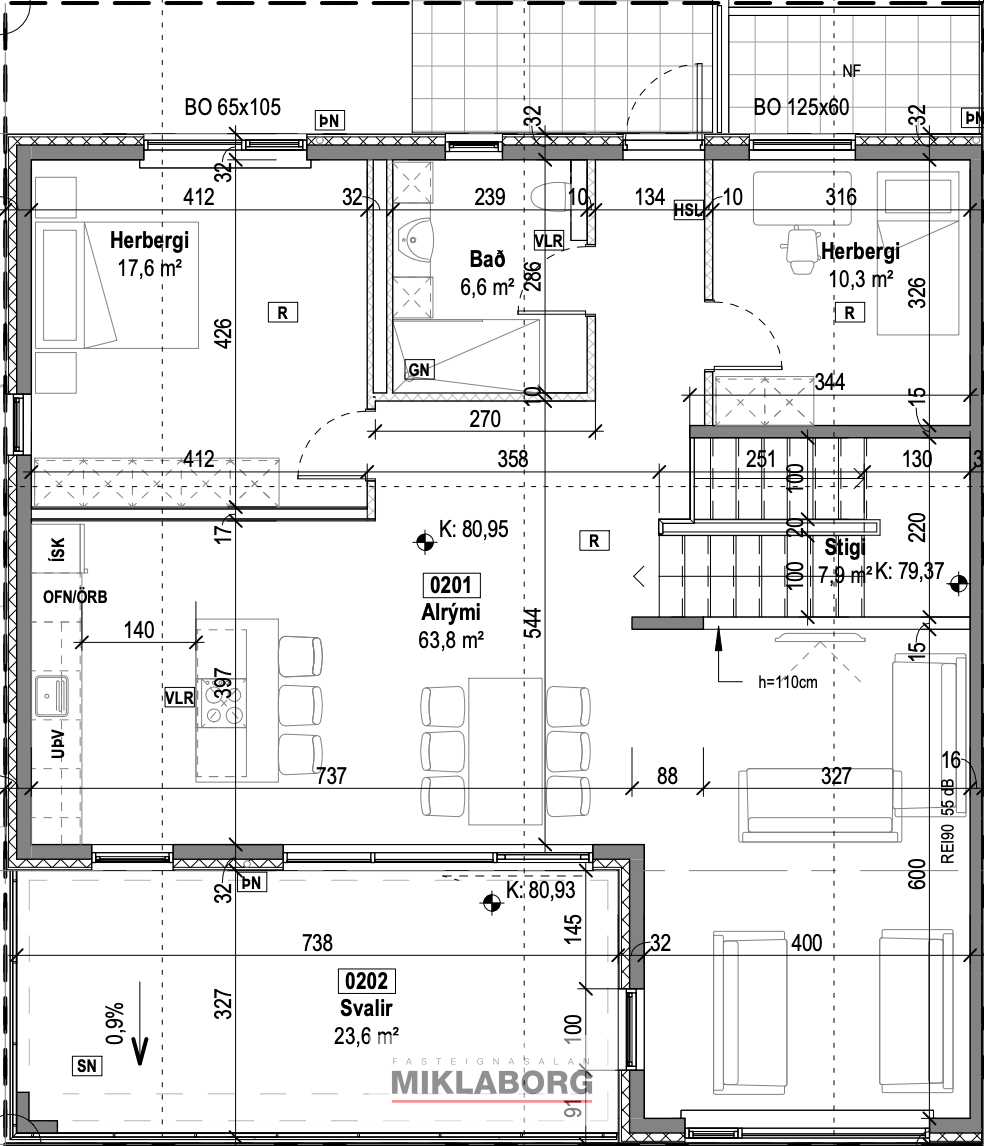
Um er að ræða tvílyft raðhús við Úugötu 34-40 með innbyggðum bílskúr. Aðgengi að húsinu fyrir akandi og gangandi umferð frá Úugötu að suðvestan. Húsið er staðsteypt. Útveggir eru einangraðir að utanverðu með steinull, klætt með álklæðningu. Þakplatan er steypt. Gluggar eru verksmiðjuframleiddir ál/timbur gluggar. Gler er tvöfalt K-gler. Húsið er upphitað með gólfhitalögnum.

Fullkomið heimili fyrir fjölskylduna. Raðhúsið er samtals 239,2 m2 og þar af er bílskúr 27,9 m2. Fjögur svefnherbergi, sjónvarpshol, tvö baðherbergi, þvottahús, geymsla, eldhús, stofa og borðstofa, útengt á stórar svalir frá borðstofu sem snúa í suðvestur, bílskúr.

Örstutt í leik- og grunnskóla. Reykjalundaskógur, Helgafell og Reykjafell í næsta nágrenni. Nánari upplýsingar veita Friðjón Örn Magnússon, lögg. fasteignasali í síma 692-2704 eða fridjon@miklaborg.is og Ólafur Finnabogason, lögg. fasteignasali í síma 822-2307 eða olafur@miklaborg.is


Engin gögn fundust fyrir þessa eign

Sambærilegar eignir

Skoða eignina Litlikriki 47
Bílskúr
Skoða eignina Litlikriki 47
Litlikriki 47
270 Mosfellsbær
259.9 m2
Parhús
836
615 þ.kr./m2
159.900.000 kr.
Skoða eignina Úugata 36
Opið hús:02. nóv. kl 16:30-17:00
uugata_framan3.jpg
Skoða eignina Úugata 36
Úugata 36
270 Mosfellsbær
239.2 m2
Raðhús
624
620 þ.kr./m2
148.400.000 kr.
Skoða eignina Úugata 34
Opið hús:02. nóv. kl 16:30-17:00
úugata_framan.JPEG
Skoða eignina Úugata 34
Úugata 34
270 Mosfellsbær
239.2 m2
Raðhús
624
648 þ.kr./m2
154.900.000 kr.
Skoða eignina Úugata 38
Opið hús:02. nóv. kl 16:30-17:00
úugata_framan3.jpg
Skoða eignina Úugata 38
Úugata 38
270 Mosfellsbær
239.2 m2
Raðhús
624
620 þ.kr./m2
148.400.000 kr.
Fasteignaleitin
Öflugur fasteignaleitarvefur með einföldu og notendavænu viðmóti sem býður upp á ítarlegar upplýsingar um fasteignir, þróun verðlags og fróðleik um fasteignamarkaðinn.
Hafðu samband
© Copyright 2025 - Fasteignaleitin