Fasteignaleitin
Skráð 5. des. 2025
Deila eign
Deila

Tónahvarf 3

Atvinnuhúsn.Höfuðborgarsvæðið/Kópavogur-203
350.2 m2
Verð
Tilboð
Mynd af Halldór Már Sverrisson
Halldór Már Sverrisson
Fasteignanúmer
2361510_35
Húsgerð
Atvinnuhúsn.
Númer hæðar
0
Lóðarréttindi
Leigulóð
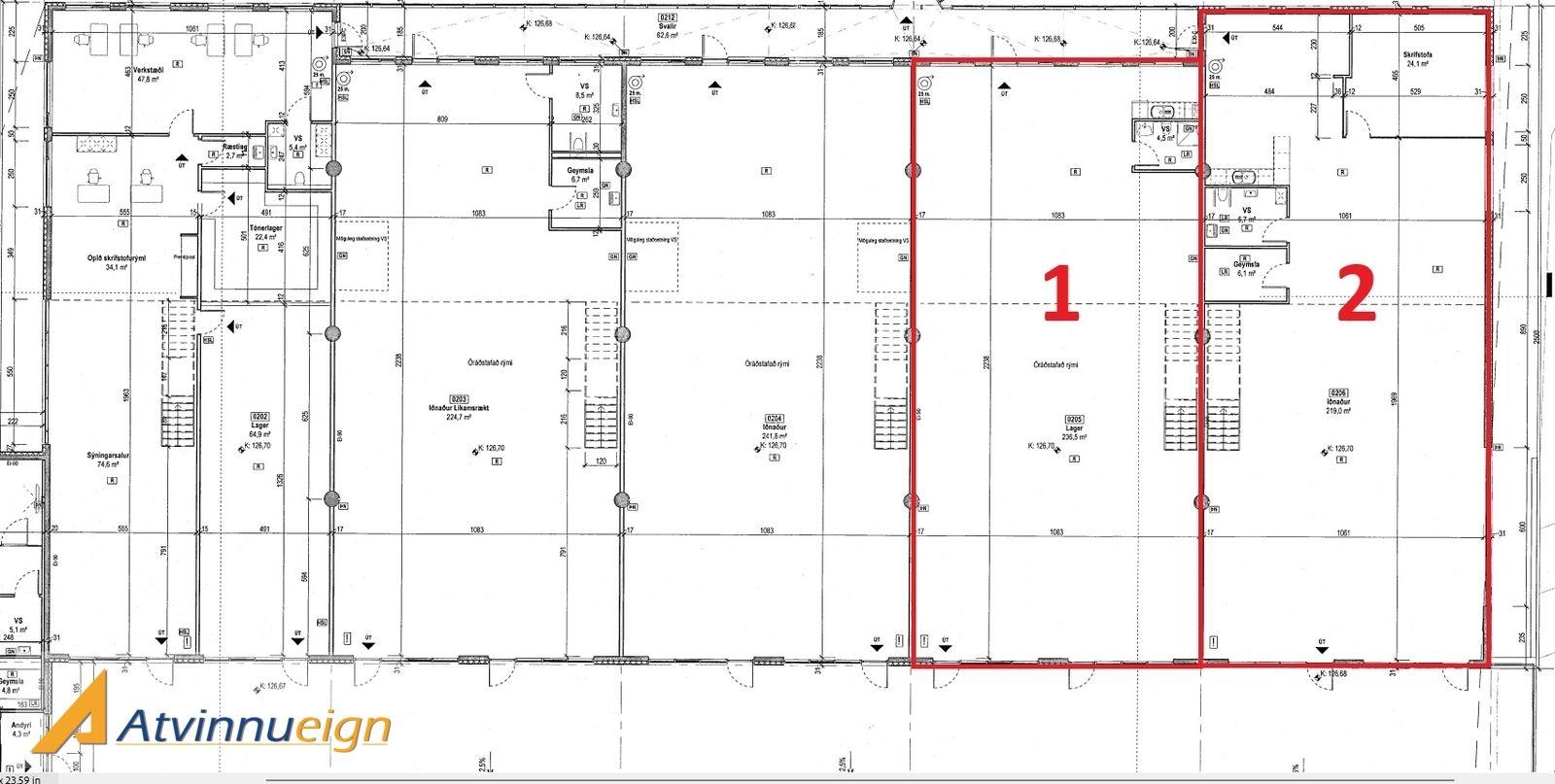
Atvinnueign kynnir til leigu: 350,2 fm iðnaðar- og skrifstofuhúsnæði við Tónahvarf 3.

Húsnæðið er iðnaðarhúsnæði sem búið er að aðlaga sem skrifstofu- og lagerhúsnæði. Rýmið er að mestu opið rými en með millilofti þar sem búið er að stúka af tvær skrifstofur/fundarherbergi.

Kaffikrókur og salernisaðstaða með sturtu. Rými merkt nr. 1 á teikningu. Góð lofthæð.

Hægt er að fá leigt til viðbótar bil við hliðina.

Rýmið er laust strax.

Virðisaukaskattur bætist við leigu.
 
Allar nánari upplýsingar veitir:
Davíð Jens Guðlaugsson, löggiltur leigumiðlari í síma 846-7495 eða david@atvinnueign.is

Á vefsíðu okkar getur þú fundið fleiri eignir sem og kynnt þér þjónustu Atvinnueignar ehf.www.atvinnueign.is

                - Atvinnueignir eru okkar fag -
Engin gögn fundust fyrir þessa eign

Sambærilegar eignir

Skoða eignina Urðarhvarf 8
Til leigu
Skoða eignina Urðarhvarf 8
Urðarhvarf 8
203 Kópavogur
347 m2
Atvinnuhúsn.
Tilboð
Skoða eignina Tónahvarf 3
Til leigu
Skoða eignina Tónahvarf 3
Tónahvarf 3
203 Kópavogur
392 m2
Atvinnuhúsn.
3 þ.kr./m2
1.200.000 kr.
Skoða eignina Tónahvarf 3
Skoða eignina Tónahvarf 3
Tónahvarf 3
203 Kópavogur
350.2 m2
Atvinnuhúsn.
4
Fasteignamat 110.050.000 kr.
Tilboð
Skoða eignina Tónahvarf 3
Skoða eignina Tónahvarf 3
Tónahvarf 3
203 Kópavogur
400.2 m2
Atvinnuhúsn.
4
3 þ.kr./m2
1.400.000 kr.
Fasteignaleitin
Öflugur fasteignaleitarvefur með einföldu og notendavænu viðmóti sem býður upp á ítarlegar upplýsingar um fasteignir, þróun verðlags og fróðleik um fasteignamarkaðinn.
Hafðu samband
© Copyright 2025 - Fasteignaleitin