Fasteignaleitin
Opið hús:20. okt. kl 17:00-17:30
Skráð 17. okt. 2025
Deila eign
Deila

Naustabryggja 15

FjölbýlishúsHöfuðborgarsvæðið/Reykjavík/Árbær-110
63 m2
2 Herb.
1 Svefnh.
1 Baðherb.
Verð
58.700.000 kr.
Fermetraverð
931.746 kr./m2
Fasteignamat
49.250.000 kr.
Brunabótamat
33.650.000 kr.
Mynd af Dagbjartur Willardsson
Dagbjartur Willardsson
Löggiltur fasteignasali
Byggt 2002
Lyfta
Garður
Sameig. Inng.
Fasteignanúmer
2258172
Húsgerð
Fjölbýlishús
Byggingarefni
St+málmur
Númer hæðar
1
Hæðir í húsi
4
Hæðir í íbúð
1
Númer íbúðar
2
Vatnslagnir
Ekki vitað.
Raflagnir
Ekki vitað
Frárennslislagnir
Ekki vitað.
Gluggar / Gler
Ekki vitað.
Þak
Ekki vitað.
Lóðarréttindi
Leigulóð
Svalir
Pallur til suðurs
Upphitun
Hitaveita
Inngangur
Sameiginlegur
Matsstig
7 - Fullgerð bygging
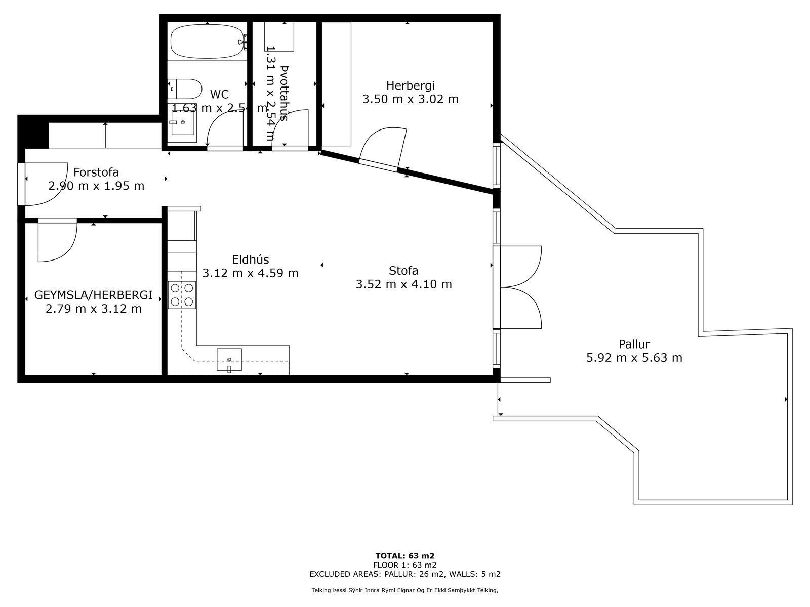
Dagbjartur Willardsson löggiltur fasteignasali og RE/MAX kynna, Naustabryggju 15, íbúð 0102 fnr. 225-8172 

Íbúðin er skráð hjá þjóðskrá 63 fm og þar af er geymsla 4,8 fm. Skráð byggingarár hússins er 2002 Húsið er 4 hæða og er íbúðin á 1. hæð hússins.  Íbúðin skiptist í opið alrými þar sem stofa og eldhús mynda eitt rými. Rúmgott svefnherbergi og baðherbergi og svo er sér þvotthúsrými. Einnig er herbergi/vinnurými sem er gluggalaust. Gengið er út á pall til suðurs út úr stofu og er einstakur sælureitur og góð viðbót við íbúðina. Sjá nánar skipulag íbúðar á teikningu sem er þar sem ljósmyndir af eigninni eru á síðunni. 

FÁÐU SENT SÖLUYIRLIT YFIR EIGNINA HÉR.

Nánari lýsing:

Forstofa:  Flísar á gólfi. Fataskápur. 

Stofa/borðstofa:  Parket á gólfi. 

Geymsla/vinnuherbergi: Gengið til hægri úr anddyri og er rými gluggalaust. Parket á gólfi. 

Svefnherbergi: Parket á gólfi. Fatakápur. 

Pallur: Pallur til suðurs með skjólveggjum. 

Eldhús: Parket á gólfi. Eikarinnrétting. Helluborð með viftu yfir. Bakstursofn. Flísalagt er á milli efri og neðri skápa. 

Baðherbergi: Flísar á gólfi sem og við baðkar. Baðkar með sturtutæki og glerþili. Innrétting með handlaug. Salerni. 

Þvottahús:  Málað gólf. Hillur. 

Geymsla: Er í kjallara og er skráð 4,8 fm. Einnig er sameiginleg hjóla/vagnageymsla á hæðinni og dekkjageymsla í kjallara. 

Naustabryggja 15 er lítil íbúð með yndislegum pallli til suðurs sem er góð viðbót við íbúðina. 

Allar nánari upplýsingar veitir:
Dagbjartur Willardsson lgf hjá RE/MAX í s: 861-7507 eða á daddi@remax.is

Gjöld sem kaupandi þarf að greiða vegna kaupanna: 
1. Stimpilgjald af kaupsamningi - 0,8% af heildarfasteignamati hjá einstaklingum. Sé um fyrstu kaup að ræða er stimpilgjald af kaupsamningi 0,4% af heildarfasteignamati.
2. Stimpilgjald af kaupsamningi - 1,6% af heildarfasteignamati hjá lögaðilum.
3. Þinglýsingargjald af kaupsamningi, veðskuldabréfi, veðleyfi og fl. 2.700 kr. af hverju skjali.
4. Lántökugjald lánastofnunar - breytilegt, sjá gjaldskrá á heimasíðum lánastofnana.
5. Umsýslugjald til fasteignasölu 69.900 kr. m.vsk.

Í lögum um fasteignakaup nr. 40/2002 er kveðið á um ríka skoðunarskyldu kaupenda á fasteignum. Vill RE/MAX því skora á væntanlega kaupendur að kynna sér vel ástand fasteigna fyrir kauptilboðsgerð og leita til þar til bærra sérfræðinga um nánari skoðun.  

 
DagsetningFasteignamatKaupverðStærðFermetraverðNothæfur samningur
14/09/201113.600.000 kr.17.000.000 kr.63 m2269.841 kr.
06/12/200611.495.000 kr.14.500.000 kr.52 m2278.846 kr.
Byggt á upplýsingum úr Þjóðskrá Íslands frá 2006-2025

Sambærilegar eignir

Skoða eignina Hraunbær 40
Opið hús:18. okt. kl 14:30-15:00
Skoða eignina Hraunbær 40
Hraunbær 40
110 Reykjavík
59 m2
Fjölbýlishús
211
964 þ.kr./m2
56.900.000 kr.
Skoða eignina Tangabryggja 18
Opið hús:19. okt. kl 13:00-13:30
Skoða eignina Tangabryggja 18
Tangabryggja 18
110 Reykjavík
66.9 m2
Fjölbýlishús
111
895 þ.kr./m2
59.900.000 kr.
Skoða eignina Reykás 27
Skoða eignina Reykás 27
Reykás 27
110 Reykjavík
69 m2
Fjölbýlishús
211
868 þ.kr./m2
59.900.000 kr.
Skoða eignina Básbryggja 21
Básbryggja21.png
Skoða eignina Básbryggja 21
Básbryggja 21
110 Reykjavík
65.5 m2
Fjölbýlishús
211
908 þ.kr./m2
59.500.000 kr.
Fasteignaleitin
Öflugur fasteignaleitarvefur með einföldu og notendavænu viðmóti sem býður upp á ítarlegar upplýsingar um fasteignir, þróun verðlags og fróðleik um fasteignamarkaðinn.
Hafðu samband
© Copyright 2025 - Fasteignaleitin